Thiết kế TAX Cafe tại Ocean Park
Thiết kế TAX Cafe tại Ocean Park xuất hiện như một ý tưởng kinh doanh đột phá: kết nối liền mạch giữa không gian cà phê hiện đại và phòng trưng bày bất động sản. Với diện tích 160m², dự án này không chỉ là thiết kế một quán cà phê thông thường, mà là câu trả lời cho câu hỏi: Làm thế nào để hai ngành kinh doanh khác biệt có thể hòa quyện trong cùng một không gian? Hãy cùng chúng tôi khám phá ngay thiết kế của dự án này qua bài viết dưới đây.
Bắt đầu từ mặt bằng trống - Cơ hội hay thách thức?
Nhiều người nghĩ rằng thiết kế trên mặt bằng mới hoàn toàn là điều kiện lý tưởng. Phần nào đó, điều này đúng. Kiến trúc sư có quyền tự do tối đa: không cần lo lắng về kết cấu cũ, không phải thỏa hiệp với hệ thống kỹ thuật đã có. Mọi thứ từ vị trí tường ngăn, đường điện, ống nước đều được bố trí theo phương án tối ưu ngay từ ban đầu. Việc lắp đặt thiết bị sẽ diễn ra thuận lợi hơn nhiều so với việc phải cải tạo không gian cũ.
.jpg)
Nhưng đồng xu luôn có hai mặt. Với TAX Cafe, thử thách lớn nhất đến từ việc chủ đầu tư liên tục điều chỉnh ý tưởng xuyên suốt quá trình thi công. Mỗi thay đổi tưởng chừng như nhỏ đều kéo theo hiệu ứng domino: ảnh hưởng đến tiến độ, làm tăng chi phí, đòi hỏi sự điều chỉnh linh hoạt từ đội ngũ thi công. Áp lực về deadline khai trương càng khiến mọi thứ trở nên căng thẳng hơn.
Học hỏi từ Highlands nhưng không sao chép
Khi chủ đầu tư đề xuất hướng đi "giống Highlands Coffee", đây không phải lời yêu cầu đơn giản. Highlands đã xây dựng được một bản sắc riêng trong lòng người Việt sang trọng nhưng gần gũi, hiện đại mà không xa lạ. Tuy nhiên, TAX Cafe cần thêm một yếu tố: thể hiện tính chuyên nghiệp của ngành bất động sản.
.jpg)
Khách hàng mục tiêu của TAX Cafe là những người có thu nhập ổn định, am hiểu về chất lượng, và quan trọng là đang tìm kiếm thông tin về bất động sản. Họ cần một không gian vừa đủ thân thiện để thư giãn với tách cafe, vừa đủ chuyên nghiệp để thảo luận về những giao dịch giá trị lớn.
Từ đó, ý tưởng về không gian đa năng ra đời. Sáng sớm, đây là điểm dừng chân của dân văn phòng. Buổi trưa và chiều, không gian biến hóa thành phòng tư vấn bất động sản với đầy đủ tiện nghi. Tối đến, quán lại chào đón những cuộc gặp gỡ bạn bè, đối tác. Mỗi giây phút trong ngày, không gian phải phát huy tối đa giá trị sử dụng.
.jpg)
Phong cách được kết hợp giữa Modern và Mid Century
Lựa chọn phong cách cho TAX Cafe không phải quyết định tùy hứng. Đó là sự tính toán kỹ lưỡng giữa Modern và Mid Century Modern - hai trường phái bổ sung hoàn hảo cho nhau.
Nếu Modern mang đến sự gọn gàng, tối giản với những đường nét kiên định, thì Mid Century lại bổ sung hơi thở ấm áp qua đồ nội thất mang tính biểu tượng và chất liệu gần gũi tự nhiên. Kết quả là một không gian vừa đương đại, vừa mang chút hoài niệm - đúng khẩu vị của khách hàng Việt Nam: yêu thích điều mới nhưng không bỏ quên giá trị truyền thống.
.jpg)
Mặt tiền gây ấn tượng đầu tiên với sắc xanh biển
Bước ra không gian ngoại thất, điều đầu tiên bắt mắt chính là tông màu xanh dương được sử dụng khéo léo. Không phải xanh chói chang hay quá tối, mà là sắc xanh vừa phải, vừa mát mắt vừa chuyên nghiệp. Lựa chọn này giúp TAX Cafe nổi bật giữa hàng loạt cửa hiệu trong khu Ocean Park.
.jpg)
Chất liệu ngoại thất được chọn lọc dựa trên tiêu chí bền vững và thẩm mỹ. Đá sa thạch khò ốp tường tạo texture độc đáo, vừa hiện đại vừa mang hơi hướng thiên nhiên. Loại đá này còn có ưu điểm chống thấm xuất sắc. Bàn ghế sân vườn là nhựa giả mây cao cấp phù hợp với không gian ngoài trời. Lối đi rải sỏi trắng vừa tạo âm thanh nhẹ nhàng, vừa hỗ trợ thoát nước hiệu quả.
.jpg)
.jpg)
Đặc biệt, thay vì cửa ra vào vuông góc cứng nhắc, thiết kế chọn những đường vòm cong mềm mại. Những vòm này không chỉ tạo điểm nhấn thẩm mỹ mà còn tối ưu hóa ánh sáng tự nhiên tràn vào.
.jpg)
Nội thất trong thiết kế TAX Cafe tại Ocean Park
Bước vào bên trong, bạn sẽ nhận ra ngay triết lý thiết kế: "less is more" không chỉ là khẩu hiệu. Không gian được "thở" với những khoảng trống hợp lý thay vì chật ních đồ trang trí. Mỗi món nội thất đều có lý do hiện diện rõ ràng: không thừa, không phô trương.
.jpg)
Bàn ghế được tuyển chọn kỹ càng, cân bằng giữa thẩm mỹ và công năng. Sự tối giản này mang lại lợi ích thiết thực. Vệ sinh hàng ngày dễ dàng hơn khi không có nhiều góc khuất. Chi phí bảo dưỡng giảm đáng kể. Quan trọng nhất, khách hàng có thể tập trung vào điều thực sự quan trọng: thưởng thức cafe chất lượng hoặc thảo luận về dự án bất động sản mà không bị phân tâm bởi decor rườm rà.
.jpg)
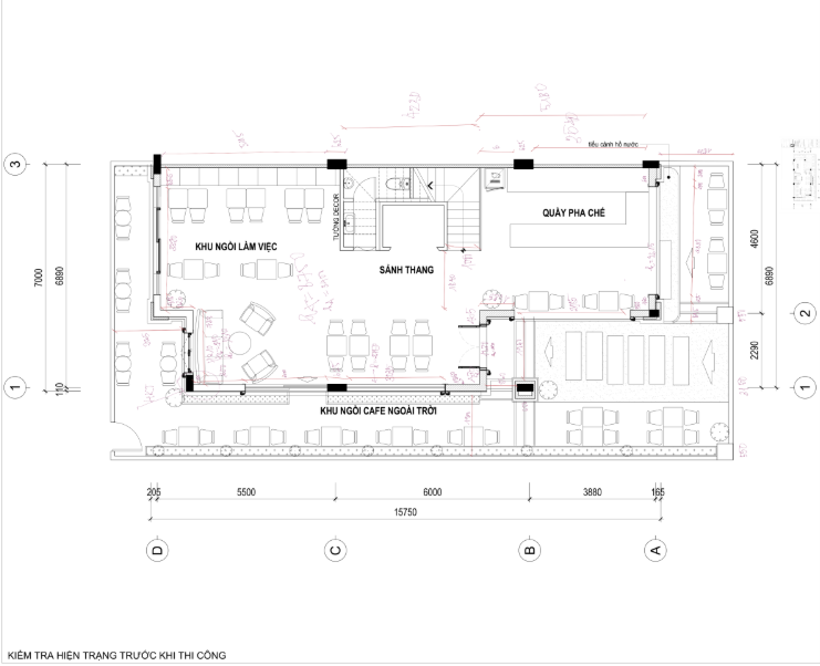
Không gian phân chia khoa học trong từng mét vuông
160m² - con số không quá lớn nhưng cũng không nhỏ. Câu hỏi đặt ra: Làm sao tận dụng hiệu quả nhất?
Không gian được phân chia theo chức năng rõ ràng nhưng vẫn đảm bảo sự liên kết. Khu vực ngoài trời chiếm khoảng 40m2, phục vụ những ai yêu thích không khí thoáng đãng hoặc có nhu cầu hút thuốc. 120m2 còn lại dành cho không gian trong nhà, bao gồm: quầy bar trung tâm, khu vực ghế ngồi chung, góc tư vấn riêng tư, và các phòng phụ trợ.

Quầy bar làm điểm nhấn trung tâm
Quầy bar đặt ở vị trí trung tâm để phục vụ hiệu quả cho toàn bộ không gian. Thiết kế quầy mang dấu ấn đương đại với đường nét cong mềm mại, tránh sự cứng nhắc của hình học vuông góc. Thân quầy ốp gỗ công nghiệp màu nâu ấm, tạo cảm giác gần gũi.

Điểm nhấn ấn tượng nhất với hệ thống đèn hộp sáng trắng treo phía trên. Chúng không chỉ cung cấp ánh sáng đủ cho việc pha chế mà còn là điểm thu hút thị giác. Khi bước vào, ánh mắt tự nhiên hướng về đây, tạo ấn tượng đầu tiên tích cực.
Chất liệu cân bằng giữa thẩm mỹ và thực tế
Lựa chọn chất liệu cho TAX Cafe dựa trên nhiều tiêu chí: đẹp, bền, dễ bảo dưỡng và phù hợp với khí hậu Việt Nam.
Gỗ công nghiệp trở thành lựa chọn chính cho bàn ghế. Tại sao? Nó chống ẩm tốt hơn gỗ tự nhiên, không cong vênh theo thời gian, và có giá thành hợp lý. Màu sắc đa dạng cho phép tạo ra tông nâu be ấm áp, phù hợp với concept tổng thể.
.jpg)
Da simili cho phần đệm ghế mang lại nhiều ưu điểm. Khác với vải thông thường dễ bám bụi, simili chỉ cần lau khăn ẩm là sạch. Hơn nữa, nó bền, không phai màu dưới ánh nắng, duy trì vẻ đẹp trong thời gian dài. Màu nâu nhạt và be được chọn để hài hòa với gỗ công nghiệp.
Decor đơn giản trong thiết kế quán cafe
Thay vì trang trí quá mức như nhiều quán cafe khác, TAX Cafe chỉ tập trung vào những items thực sự có ý nghĩa. Sơn nước tạo tường màu be nhạt - vừa tiết kiệm, vừa thân thiện môi trường, vừa dễ sửa chữa khi cần.
Điểm nhấn decor chính là bức tranh dán tường nổi khổ lớn về bản đồ thế giới. Lựa chọn này có nhiều tầng ý nghĩa:
- Thể hiện tầm nhìn toàn cầu của công ty bất động sản
- Tạo chủ đề đàm thoại thú vị cho khách hàng
.jpg)
.jpg)
Ánh sáng và màu sắc
Một trong những điểm thú vị nhất của TAX Cafe là sự tương phản màu sắc giữa ngoại thất và nội thất. Bên ngoài chủ đạo xanh dương mát mẻ, tạo cảm giác chuyên nghiệp. Bên trong lại ấm áp với nâu be, mang lại sự thư giãn. Sự chuyển đổi này tạo trải nghiệm thú vị: bị thu hút bởi vẻ ngoài năng động, nhưng được bao bọc bởi không gian ấm cúng khi bước vào.
.jpg)
Hệ thống ánh sáng thiết kế theo nguyên tắc tầng lớp, kết hợp tự nhiên và nhân tạo. Cửa sổ kính lớn đón ánh sáng ban ngày, tạo kết nối thị giác giữa trong và ngoài. Buổi tối, đèn LED âm trần đảm nhận vai trò chính, có thể điều chỉnh độ sáng phù hợp với từng thời điểm.
.jpg)
Dự án thiết kế TAX Cafe tại Ocean Park là mô hình kinh doanh thông minh, nơi việc bán cafe và tư vấn bất động sản kết hợp tự nhiên, hiệu quả. Không gian vừa đủ chuyên nghiệp để tạo niềm tin với khách hàng bất động sản, vừa đủ thân thiện để thu hút người yêu cafe chất lượng.
Bạn đang muốn mở quán cafe hoặc tìm kiếm giải pháp thiết kế nội thất cho không gian kinh doanh? KenDesign không chỉ tạo ra những không gian đẹp mắt mà còn tối ưu hóa hiệu quả kinh doanh của bạn. Mỗi dự án là một câu chuyện riêng, phản ánh cá tính và tầm nhìn của chủ đầu tư.
Liên hệ ngay qua Fanpage: KenDesign để được tư vấn MIỄN PHÍ
Bài viết liên quan
Thiết kế KAKA Cafe tại Hàn Quốc
Thiết kế TAX Cafe tại Ocean Park
Thiết kế quán VCV Coffee tại Thái Nguyên
Thiết kế cafe coworking Flow Haus cơ sở 1 tại Lê Văn Lương
Thiết kế cafe coworking FLOW HAUS cơ sở 2 tại Mễ Trì
Bài viết nổi bật












.jpg)
.jpg)
.jpg)
.jpg)












.jpg)







.jpg)